Overview:

  • Approved CMDA

  • Property ID CCL2069

  • no of units 8 Unit

About Grand Rosso

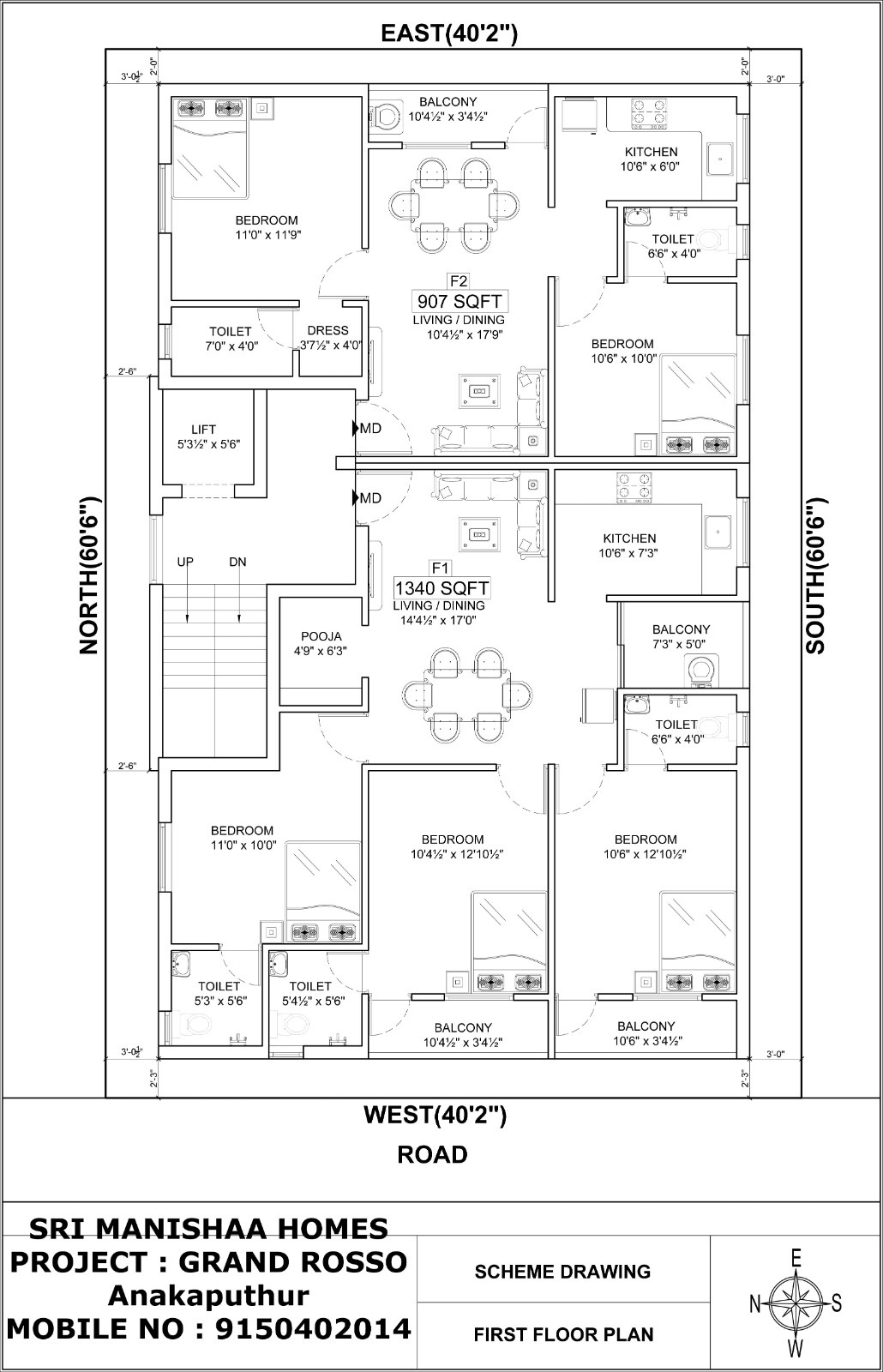
Chennai’s residential project, Sri Grand Rosso is offering property for sale. Check out some Apartment. Available configurations include 1 BHK, 2 BHK, 3 BHK formats in Anakaputhur. It is a Under Construction project by Sri Manishaa Homes. As per the area plan, units are in the size range of 521.0 – 1340.0 sq.ft.. Sri Grand Rosso was launched in October 2023 and possession date is Apr, 2024. There are 8 units in Sri Grand Rosso. There is 1 building. Sri Grand Rosso is located in Anakaputhur.

There are multiple amenities for residents at Sri Grand Rosso which includes Power Backup. There is 24×7 Security. It is a Gated Community. Other provisions include access to Solid Waste Management And Disposal, Storm Water Drains, Sewage Treatment Plant. Own a home in Sri Grand Rosso today!.

Sri Grand Rosso is a RERA registered project with ID Rera Not Applicable.

Anakaputhur is well-connected to other parts of city by road, which passes through the heart of this suburb. Prominent shopping malls, movie theatres, school, and hospitals are present in proximity of this residential project.

Amenities

  • Kids Play Area Kids Play Area

  • CCTV Camera CCTV Camera

  • 24X7 Power 24X7 Power

  • Car Parking Area Car Parking Area

  • On Road Property On Road Property

  • Children Play Area Children Play Area

  • Quality Blacktop Roads Quality Blacktop Roads

Floor Plan

Price

 

Type Sq.Ft Price
1BHK 521 31L
2BHK 835 50L
2BHK 842 51L
3BHK 1340 80L

Location Map

FAQ

You can find all types of properties including residential plots, CMDA-approved properties, DTCP plots, farmland, apartments, and commercial properties.

No, we list only properties that are available for sale.

There’s no limit — you can post as many properties as you wish.

No, Chennailand is an exclusive platform for Chennai-based properties only.

No, the platform is completely free for both buyers and sellers.

Contact Seller

Default Logo By Sri Manisha Homes View My Listings

Please Share Your Contact

I agree to be contacted via WhatsApp, SMS, phone, email etc.